首页
走进城发
新闻中心
信息公开
业务版块
业务版块
首页
>
业务版块
>
科创服务
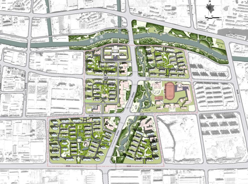
江阴市云亭街道季庄新区概念性城市设计
发布时间:2023-10-25
城发集团
江阴公交
交通驾培
澄安服务
版权所有:江阴城市发展集团有限公司
地址:江苏省江阴市澄江中路8号
技术支持:
江苏领悟信息技术有限公司
苏ICP备2023023968号-1
苏公网安备 32028102001236号